logements coopérative vergers meyrin
1er prix
Concours sur invitation pour la réalisation de trois bâtiments de logements THPE dans l'ecoquartier des Vergers à Meyrin
En collaboration avec BLSA architectes sa
Maître de l'ouvrage:
Coopérative Equilibre
Lieu:
Meyrin, Genève
Année:
2013 - en cours





images de synthèse: playtime
73 appartements de catégorie HM - LUP
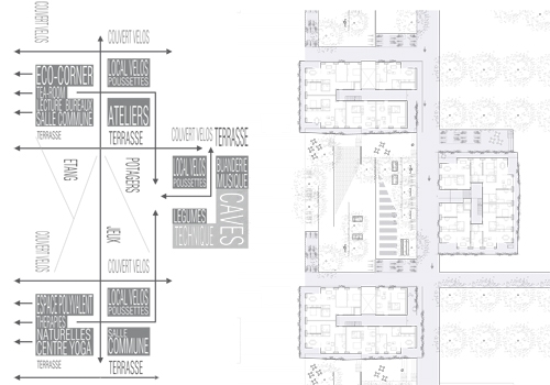
La philosophie de la coopérative Equilibre a été une réelle source d'inspiration - grande sensibilité face à l'environnement, importance de l'aspect social, volonté de construire un habitat propice au "bien vivre ensemble" avec la participation des habitants. Ces fondements nous ont encouragés à explorer des solutions constructives et typologiques innovantes et à développer un projet d'habitat écologique basé sur les rencontres et la convivialité.
Les rez-de-chaussée traversant et les aménagements extérieurs proposés assurent le lien entre les immeubles de la coopérative Equilibre et le quartier. Les espaces communs se déclinent sous plusieurs formes et fonctions, depuis les buanderies, jusqu'aux balcons coursives, en passant par de généreux paliers communs, éclairés naturellement.
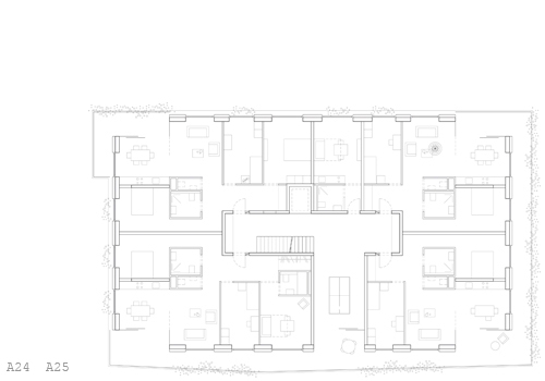
Les typologies des appartements et leurs prolongements extérieurs s'organisent en fonction de l'orientation. De larges balcons végétalisés courent le long des façades bien orientées, s'ouvrant vers la lumière, tout en protégeant la façade du soleil estival.
Depuis le hall d'entrée de chaque appartement, une échappée visuelle sur les espaces de jour génère une sensation de grandeur spatiale. Les pièces s'organisent autour des noyaux sanitaires, offrant la possibilité de passer d'un espace à l'autre de manière fluide.
Le système structurel permet une multiplicité de tailles d'appartements, et une grande flexibilité dans le temps. Le projet propose aussi des pièces multifonctionnelles, munies de deux accès, l'un depuis l'appartement, l'autre depuis le palier, et équipées de toilettes et éventuellement d'une cuisinette. Ces pièces peuvent accueillir des membres du ménage qui nécessitent une certaine indépendance: jeune adulte, aide familiale, parent vieillissant, étudiant ou servir comme pièce de travail à domicile.